Green Island Villas

Color rendering  Opens in new window

Description

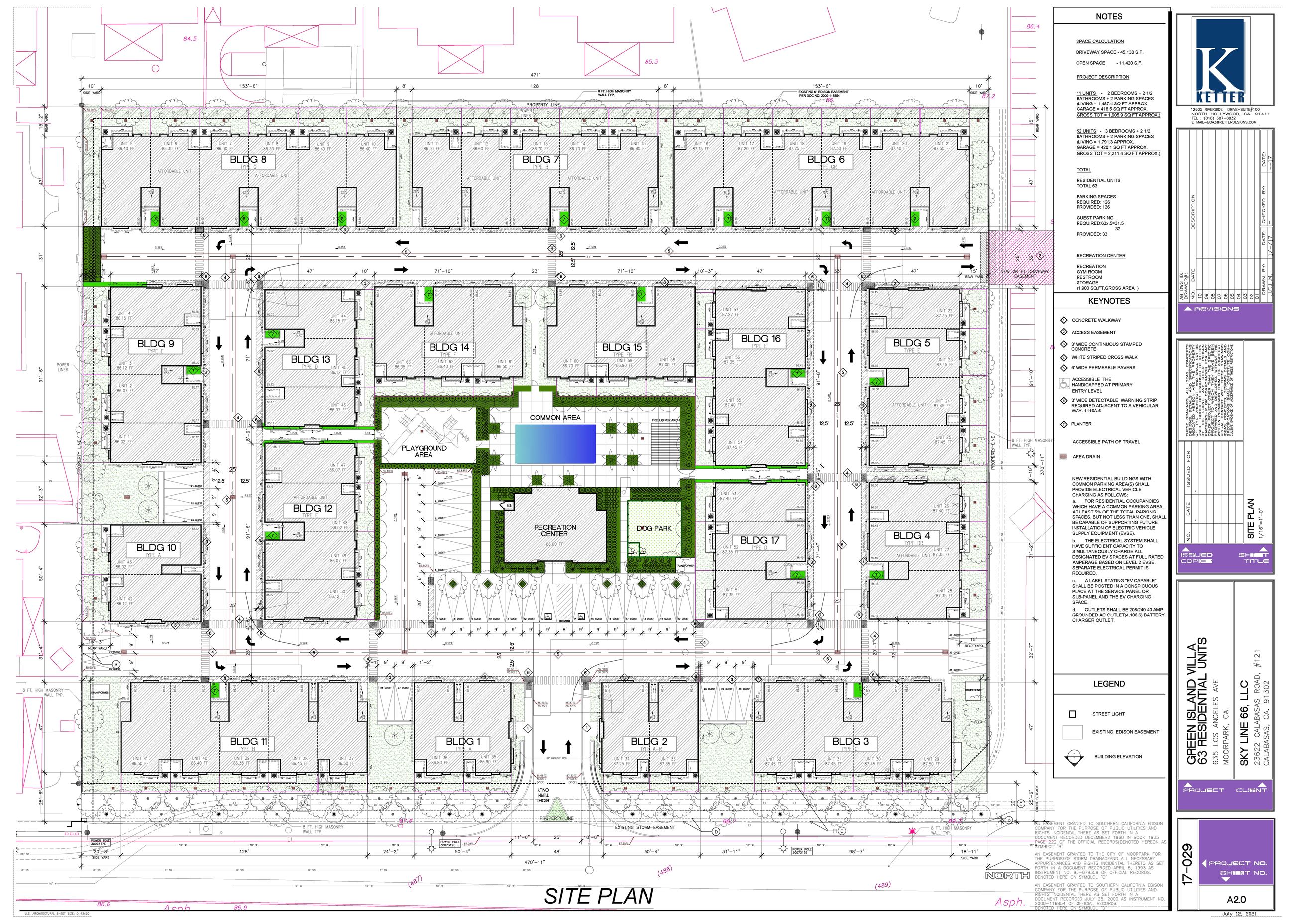
The project consists of 63-unit multi-family residential condominiums, a one-story recreational center proposed to include a recreation room, fitness center and restrooms, an outdoor swimming pool, play ground, dog park and associated landscape and hardscape site improvements on a previously-developed 4.01-acre lot, located at 635 Los Angeles Avenue. The project includes 17 two-story residential buildings, with a total of 18 two-bedroom units and 51 three-bedroom units. Each unit will include a two-car garage. A total of 35 surface guest parking spaces will be dispersed throughout the site. Primary street access to the property is provided by California State Route 118 (Los Angeles Avenue) and residents will have secondary access to the east, through the adjacent Mission Bell Plaza shopping center. The Project has not yet begun construction.

For more information about this project please contact Philip Neumann, Senior Planner, at pneumann@moorparkca.gov

Application Status

Step 4 - Approved

As of September 1, 2025, the Residential Planned Development Permit associated with this project has expired.

Site Plan  

Revised Plans Opens in new window


Project Details

  • 63 multi-family residential condominiums (11 two-bedroom and 52 three-bedroom)
  • 1,916 square-foot recreation center
  • 800 square-foot pool
  • 74,844 square feet of landscaped area

Project Site

Aerial Map

Environmental Review

Pursuant to the California Environmental Quality Act (CEQA), an Initial Study determined that the project could not have a significant impact on the environment and a Negative Declaration was prepared.

Past Hearings:

Documents

Contacts:

Project Planner 
Philip Neumann
Senior Planner
(805) 517-6230
PNeumann@moorparkca.gov  


Project Applicant
Mike Evanisko
Sky Line 66, LLC.
(323) 801-7186
mike@hankeycapital.com